Frazionamento: come dividere una casa in più unità abitative

Frazionamento: come dividere una casa in più unità abitative
Il frazionamento di un immobile consente di dividere un appartamento in due o più unità abitative autonome ed indipendenti tra di loro.
frazionamento appartamento

Indice dei contenuti

Il frazionamento è una soluzione molto vantaggiosa che però prevede un’apposita procedura per essere eseguita a norma di legge. Tuttavia il decreto Sblocca Italia del 2014 ha semplificato notevolmente le pratiche da richiedere per la divisione di un immobile.

I VANTAGGI DEL FRAZIONAMENTO

I frazionamenti immobiliari possono portare numerosi vantaggi ai proprietari:

Se si ha un appartamento molto grande che non viene sfruttato appieno, è possibile suddividerlo in due unità abitative, abitandone una e mettendo a reddito la porzione indipendente ricavata.

In caso di successione ereditaria con due o più eredi, il frazionamento dell’immobile in oggetto, consente a tutti gli eredi di beneficiare del bene evitandone la vendita o la cessione a solo uno di loro.

Il frazionamento dell’immobile è una soluzione molto apprezzata anche quando si vuole destinare una frazione della propria casa ai figli, realizzando per loro un’abitazione indipendente.

In ultimo il frazionamento immobiliare permette di aumentare il valore di un immobile poichè un’abitazione di notevoli dimensioni ha una quotazione al metro quadro inferiore rispetto a un piccolo appartamento. Inoltre è più facile vendere un appartamento di metrature inferiori.

LA PROCEDURA DA SEGUIRE PER UN FRAZIONAMENTO IMMOBILIARE

Per effettuare il frazionamento immobiliare è necessario:

  1. Verificare quanto previsto dalle normative locali e soprattutto che l’immobile sia in regola dal punto di vista edilizio e catastale.
  2. Se effettivamente è possibile suddividere l’immobile bisogna che un tecnico abilitato (geometra, architetto, ingegnere) predisponga una CILA corredata dal progetto della divisione, e la presenti allo sportello unico del Comune per avere l’autorizzazione a procedere. Non occorre il Permesso di costruire nel caso non si modifichino la destinazione d’uso dei locali e non si aumenti il volume dell’immobile.
  3. Una volta effettuato l’intervento un tecnico abilitato deve presentare la variazione catastale con la procedura DOCFA, tramite la quale verrà soppresso il vecchio subalterno e ne verranno costituiti due o più che identificheranno le nuove unità abitative.
  4. In ultimo va presentata in Comune la fine lavori che attesta la loro conformità al progetto presentato e soprattutto che si sia effettuata la variazione catastale.

I VINCOLI NORMATIVI DEL FRAZIONAMENTO IMMOBILIARE

I vincoli normativi per frazionare un immobile sono sia a livello nazionale che a livello comunale. Ogni Comune prevede infatti regole diverse per ottenere la conformità urbanistica, tuttavia le pratiche sono disciplinate dal Testo Unico per l’Edilizia. In base all’ente locale variano le dimensioni minime delle nuove unità, i requisiti igienico-sanitari e la dotazione minima di parcheggi richiesti per la nuova abitazione realizzata, che può essere in alcuni casi sostituita con il pagamento di oneri.

IL DECRETO SBLOCCA ITALIA

Il Decreto Sblocca Italia del 2014 ha semplificato le pratiche per frazionare un immobile facendo rientrare questo intervento all’interno della manutenzione straordinaria. Non serve quindi un titolo abilitativo ma basta soltanto la presentazione allo sportello unico dell’edilizia del comune di riferimento di una CILA redatta e asseverata da un tecnico abilitato (un geometra, un architetto, un ingegnere) e corredata dal progetto della divisione.

ALCUNI CONSIGLI TECNICI SU COME DIVIDERE UN APPARTAMENTO

Quando si fraziona un immobile bisogna considerare alcuni aspetti fondamentali.

L’INGRESSO DEI NUOVI APPARTAMENTI

Un elemento molto importante del frazionamento di un immobile riguarda la realizzazione dell’accesso alla/e nuova/e unità realizzate, soprattutto se ci troviamo all’interno di un condominio. Se si apre una nuova porta sul pianerottolo condominiale, è bene richiedere l’autorizzazione dell’assemblea. La procedura è molto più semplice quando l’immobile ha già due porte d’accesso indipendenti. In alternativa si può realizzare una bussola di distribuzione interna che permetterà di entrare dalla porta originaria per trovarsi in un piccolo disimpegno dove si aprono i due nuovi ingressi indipendenti.

GLI SCARICHI E GLI IMPIANTI

Una delle prime verifiche da fare per definire la fattibilità del frazionamento, e di conseguenza la nuova pianta delle unità abitative, è relativa agli scarichi ed agli impianti. Di fondamentale importanza è la posizione degli scarichi per la cucina e il bagno del nuovo appartamento. In cucina si hanno meno vincoli, mentre la distanza del wc dalla colonna fecale è limitata perché lo scarico del bagno ha un diametro di 10 cm. Inoltre si dovrà procedere a dividere sia l’impianto elettrico che l’impianto idrico / meccanico. In ultimo è necessario richiedere nuovi contatori per l’unità derivata dalla divisione dell’immobile, inoltrando l’apposita richiesta al gestore, oltre ricavare anche lo spazio necessario per poterli alloggiare.

I MURI

Per garantire il rispetto della normativa e l’efficienza energetica delle nuove unità bisogna che i tramezzi di divisione rispettino i valori di trasmittanza termica stabiliti dal D.M. 59/09 ed i valori di isolamento acustico stabiliti dalla legge 447/95. Per quanto riguarda i tavolati interni, per rendere meno invasivo l’intervento, è possibile invece utilizzare il cartongesso.

COME DIVIDERE UN APPARTAMENTO IN UN CONDOMINIO

Se si vuole dividere un appartamento in un condominio è necessario come prima cosa consultare il regolamento condominiale per verificare se l’intervento è permesso e verificare in quali casi è bene richiedere l’autorizzazione all’assemblea. In linea di massima è possibile procedere alla divisione di un appartamento in condominio senza dover richiedere la delibera assembleale se tale intervento non comporta modifiche ai prospetti (ad esempio con l’apertura di una nuova finestra), alle parti comuni (ad esempio con l’apertura di una nuova porta) e soprattutto agli impianti.
Al termine dei lavori andrà comunque fatta una comunicazione all’amministratore di condominio affinchè si occupi di aggiornare la suddivisione dei millesimi di proprietà.

ONERI E DETRAZIONI FISCALI PER FRAZIONAMENTI IMMOBILIARI

Il frazionamento immobiliare è un intervento di manutenzione straordinaria, quindi è possibile usufruire della detrazione Irpef al 50% per lavori di ristrutturazione. La spesa massima detraibile è 96.000 euro per unità immobiliare e l’importo si suddivide in 10 rate uguali annuali. Per fruire della detrazione si effettuano i pagamenti con bonifico bancario o postale, indicando il codice fiscale o numero di partita IVA del prestatore d’opera, il codice fiscale del beneficiario della detrazione e il riferimento all’articolo 16-bis del Dpr 917/1986 nella causale. La ricevuta e le fatture vanno conservate per 10 anni. Un’altra agevolazione fiscale è il Bonus Mobili, che consente la detrazione Irpef al 50% per le spese di acquisto di mobili e grandi elettrodomestici (classe energetica di almeno A+) per arredare l’immobile ristrutturato.

QUANTO PUÒ COSTARE IL FRAZIONAMENTO DI UN IMMOBILE

I costi del frazionamento immobiliare possono essere diversi in base al Comune ed all’impresa di costruzioni alla quale ci si rivolge. La voce più importante riguarda i lavori edili e impiantistici, mentre i diritti di istruttoria della CILA e gli oneri di urbanizzazione sono molto variabili. Questi ultimi dipendono dal costo dell’intervento e ammontano a una percentuale del 10-15%. Se non esistono parcheggi pertinenziali, la loro monetizzazione non viene applicata, mentre l’imposta catastale per la variazione è sempre di 50 euro ad appartamento. Infine bisogna aggiungere la parcella del tecnico che si occuperà di predisporre il progetto, la CILA e la variazione catastale, il costo dell’allaccio delle nuove utenze ed i costi notarili nel caso in cui si decida di vendere la nuova unità abitativa.

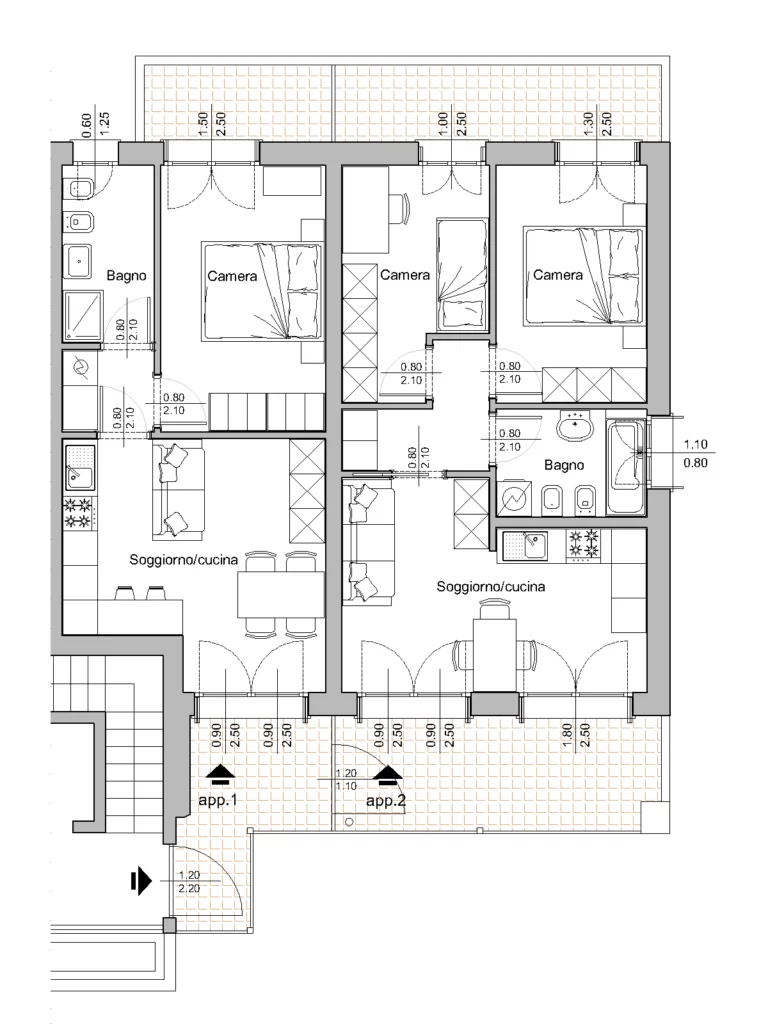
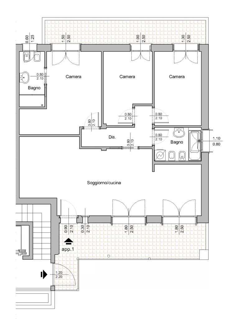
UN ESEMPIO DI FRAZIONAMENTO

A seguire è possibile vedere un esempio del frazionamento di un appartamento che abbiamo seguito in un paese in provincia di Monza e Brianza. L’appartamento originale era un quadrilocale di 106 mq, con 3 camere da letto, due bagni e zona giorno in open space. I proprietari dell’immobile avevano difficoltà a venderlo perchè c’era poca richiesta di appartamenti di grandi metrature mentre al contrario il mercato richiedeva maggiormente tagli più piccolini, come bilocali e trilocali di massimo 60 mq. Come è possibile vedere dalle planimetrie, abbiamo frazionato l’appartamento in un bilocale ed un trilocale, mantenendo intatta la posizione dei due bagni e molti degli elementi architettonici originali.

Richiedi una consulenza

Richiedici una consulenza. Parla con uno dei nostri tecnici del tuo progetto.